2022 Rénovation de la cuisine d'une maison mitoyenne lausannoise

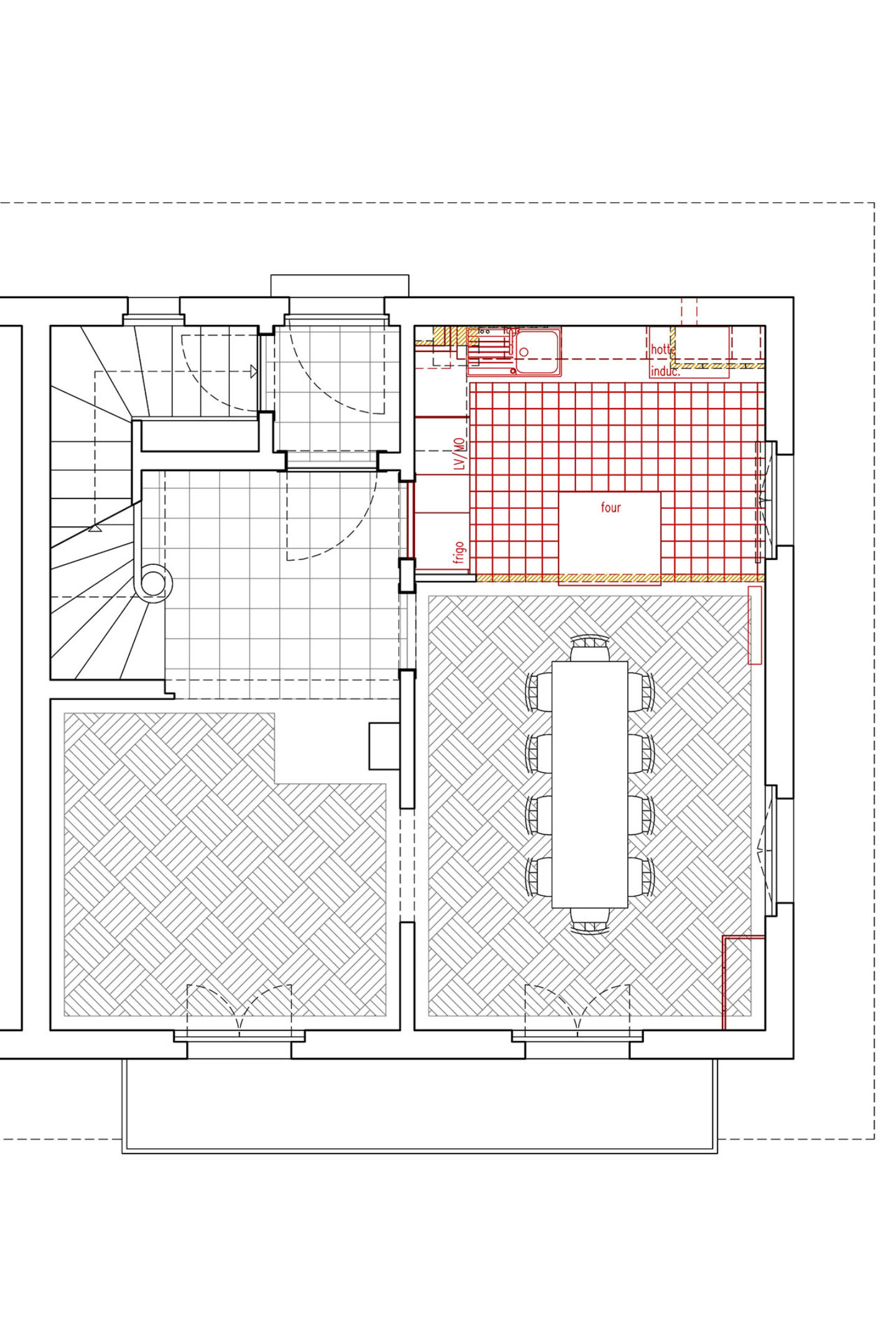
Dans cette maison des années 20, vit une famille de cinq personnes. La cuisine, fermée d’origine, était trop petite et peu fonctionnelle pour autant de monde.

L’ouverture sur le séjour permet l’ajout d’un îlot central et fluidifie l’accès à la cuisine et la circulation. L’ancienne porte est condamnée, son encadrement conservé crée un espace vestiaire dans le couloir de l’entrée.

Maître de l’ouvrage: privé

Collaboratrices: Caroline Sicre, Gaëlle Brecheteau

Bâtiment note *4* au recensement architectural du Canton de Vaud

Photographie: @dettling péléraux architectes