2018-2023 Centre de formation des métiers de la construction, Échallens (VD) - Le réemploi comme exemple

FVE Halle
FVE Halle 2
FVE Escaliers
FVE Galerie 2
FVE Galerie
FVE Galerie 3
FVE Facade
FVE Couvert réemploi
FVE déconstruction
FVE Reemploi 2
FVE Reemploi 1

L’ancien site d’une entreprise de maçonnerie est converti en centre de formation professionnelle intergénérationnel: la formation initiale des apprentis maçons et la formation continue des métiers de la construction y sont rassemblées. Une surface extérieure est dévolue aux machinistes et grutiers.

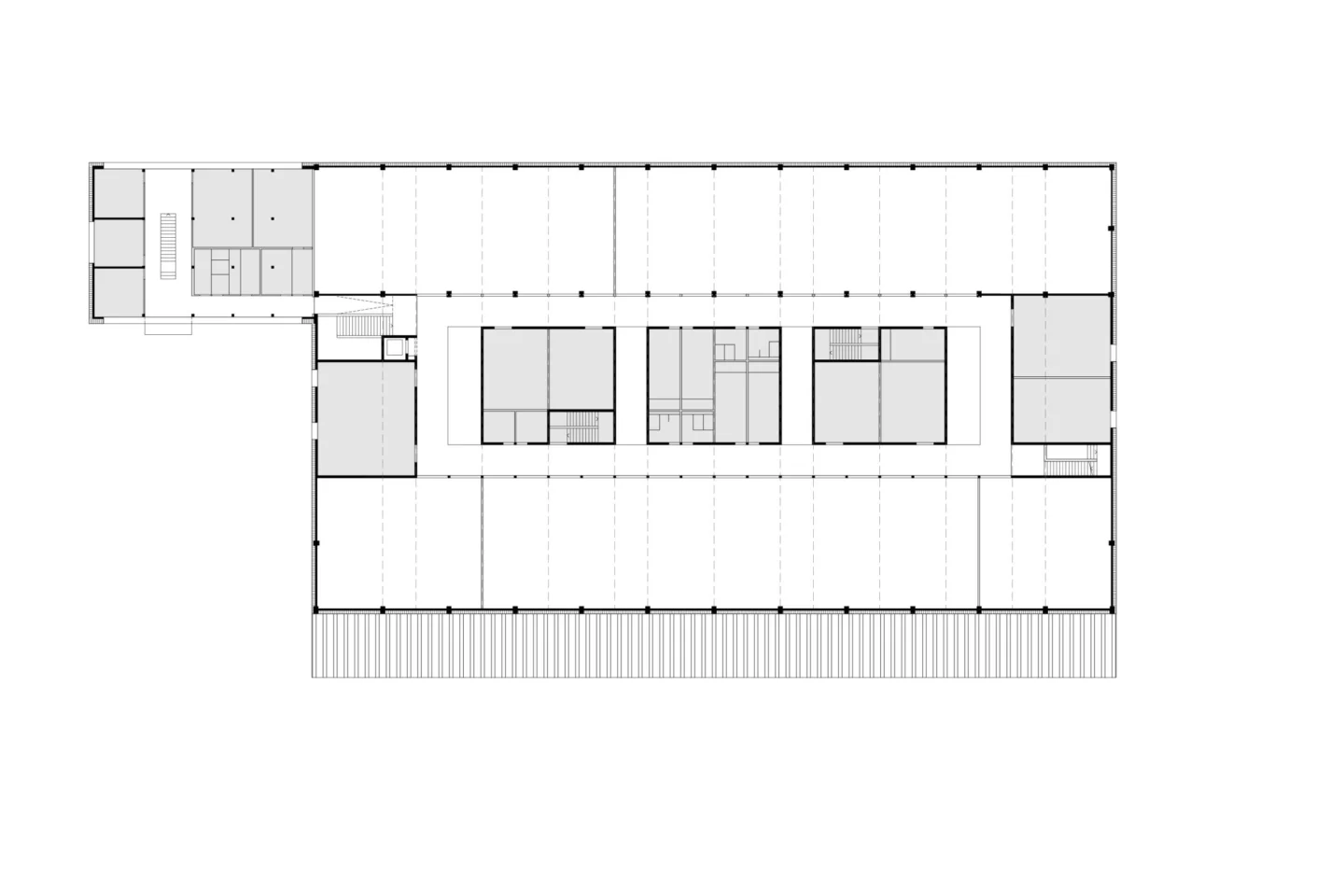
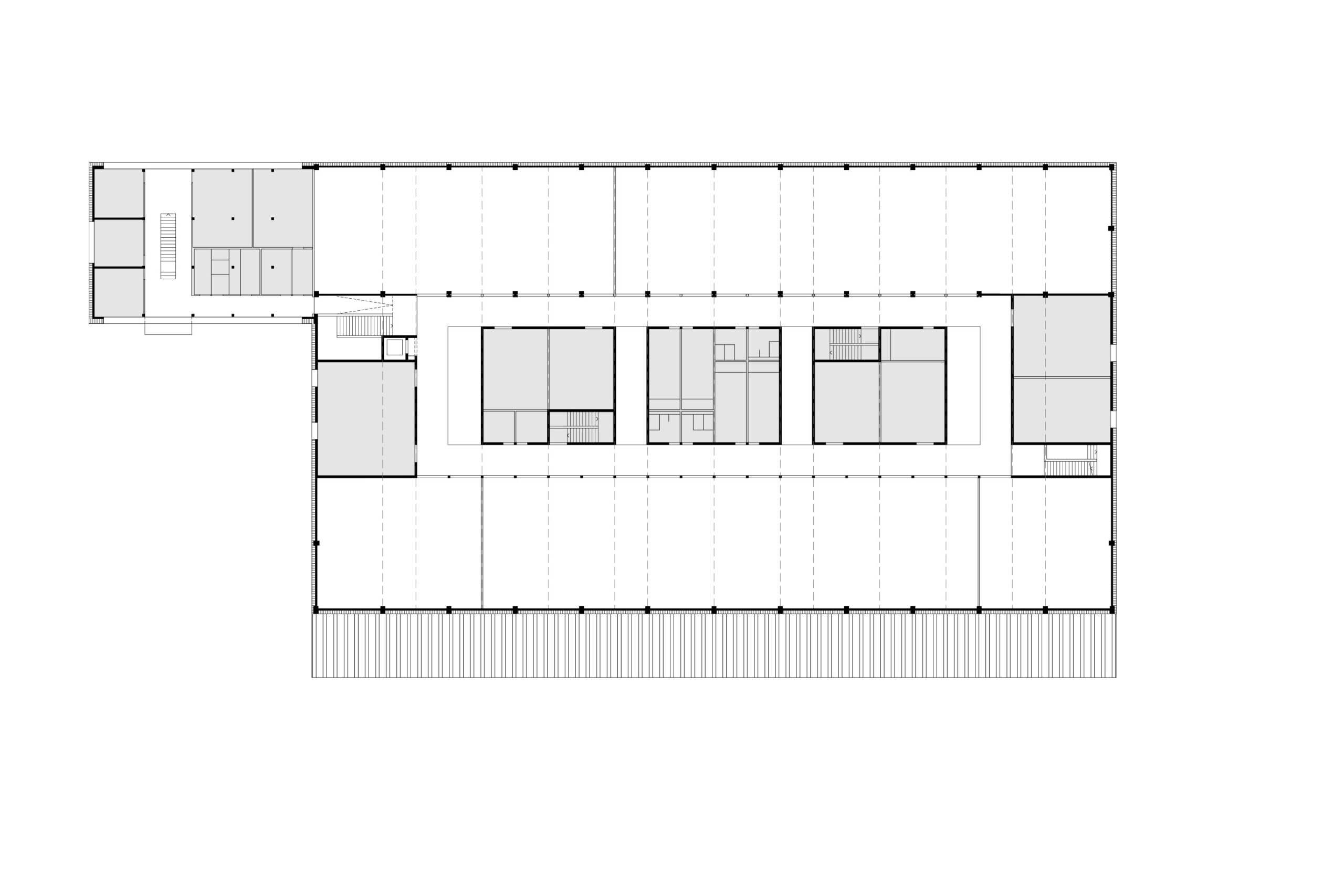
Le bâtiment réunissant une halle existante et une seconde reconstruite avec les matériaux réemployés sur place, associe deux typologies inversées:

  • au rez, la traversée centrale distribue les halles d’exercice au travers des services attenants
  • à l’étage, la circulation périphérique offre une vue sur les activités dans les halles, favorisant l’interaction entre les deux écoles et la promotion des métiers pour les visiteurs

La nouvelle toiture en sheds diffuse une lumière naturelle sans éblouissement ni surchauffe jusqu’au cœur du bâtiment grâce aux vides centraux qui relient les niveaux. Le confort estival est assuré par l’inertie thermique et la ventilation naturelle.

Maîtres de l’ouvrage: fédération vaudoise des entrepreneurs, école de la construction

Études préliminaires, programmation et faisabilité: 2018-2020
Études: 2020-2022
Réalisation: 2022-2023

Collaborateur·ices: Gaëlle Jenni, Adrien Gilliand, Gaëlle Brecheteau, Ida-Marie Hoffmann

Photographies: @Zak Andrea Zaccone, @Sébastien Bovy, @dettling peleraux architectes

Projet sélectionné dans le Swiss Architecture Yearbook 2025-2026