2018-2019 Rénovation et réaffectation en UAPE, ouverture du jardin au public, Nyon (VD)

Par la transformation en unité d’accueil pour écoliers et l’ouverture du parc au public, la maison La Combe et le jardin, dont l’atmosphère relevait de la propriété privée, prennent un caractère de « propriété publique », tout en préservant leur intimité par la conservation du mur d’enceinte existant.

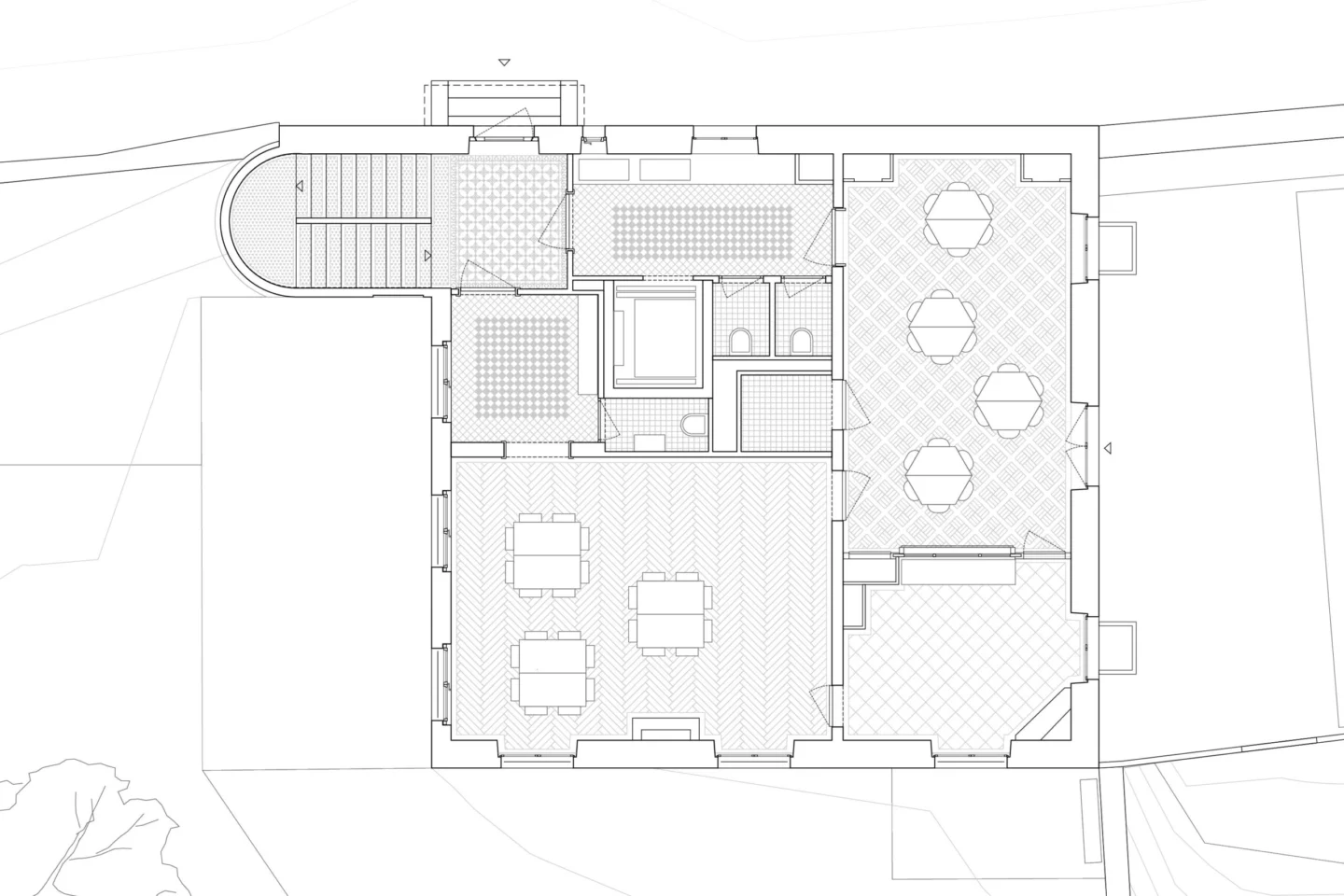
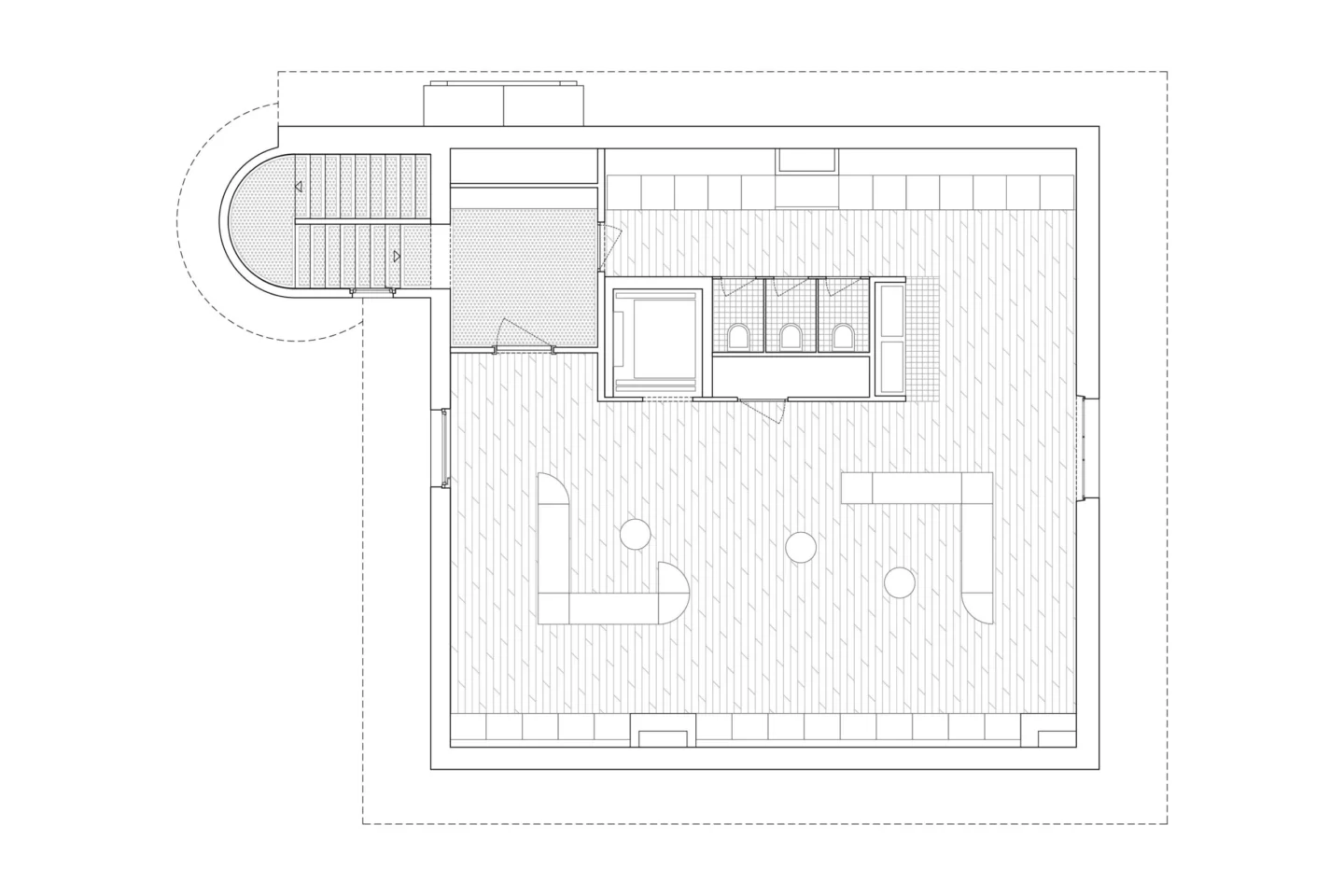
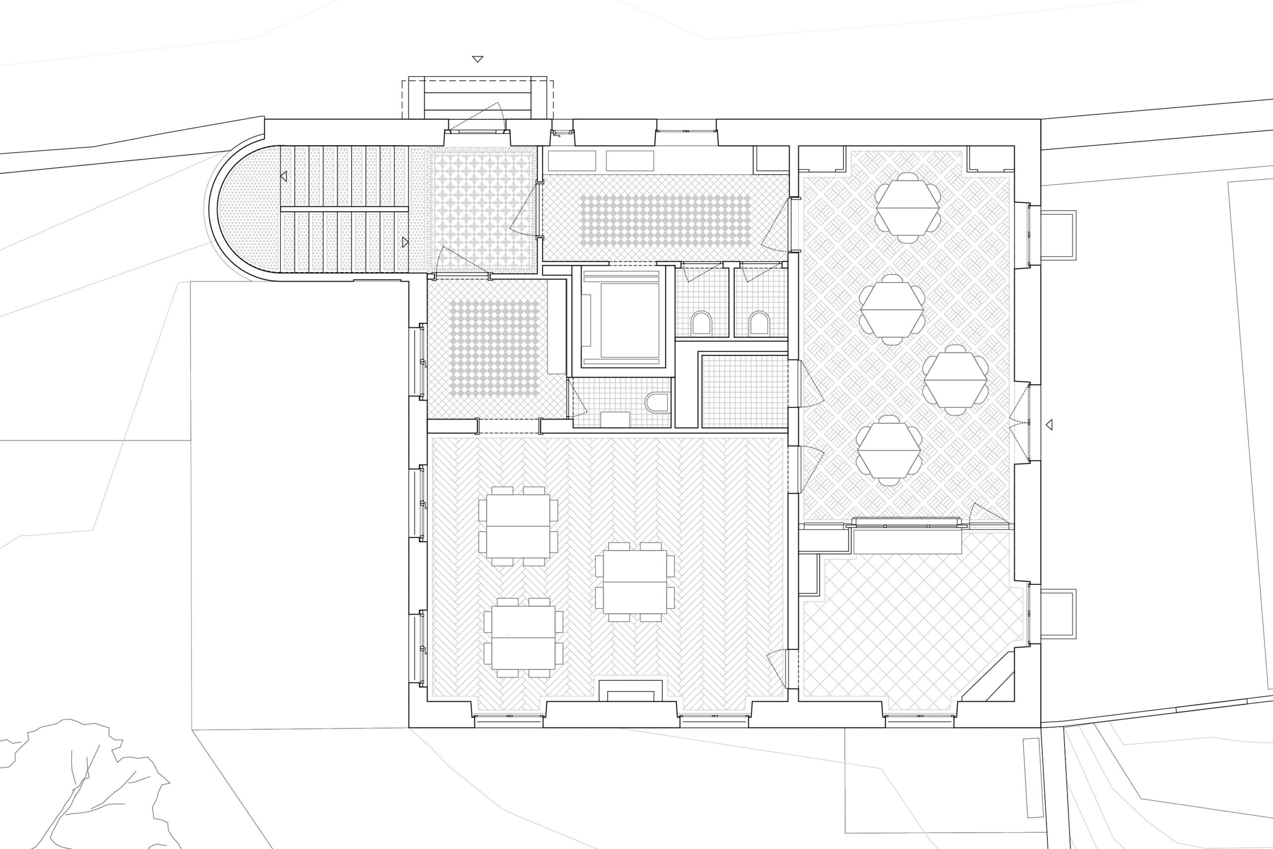
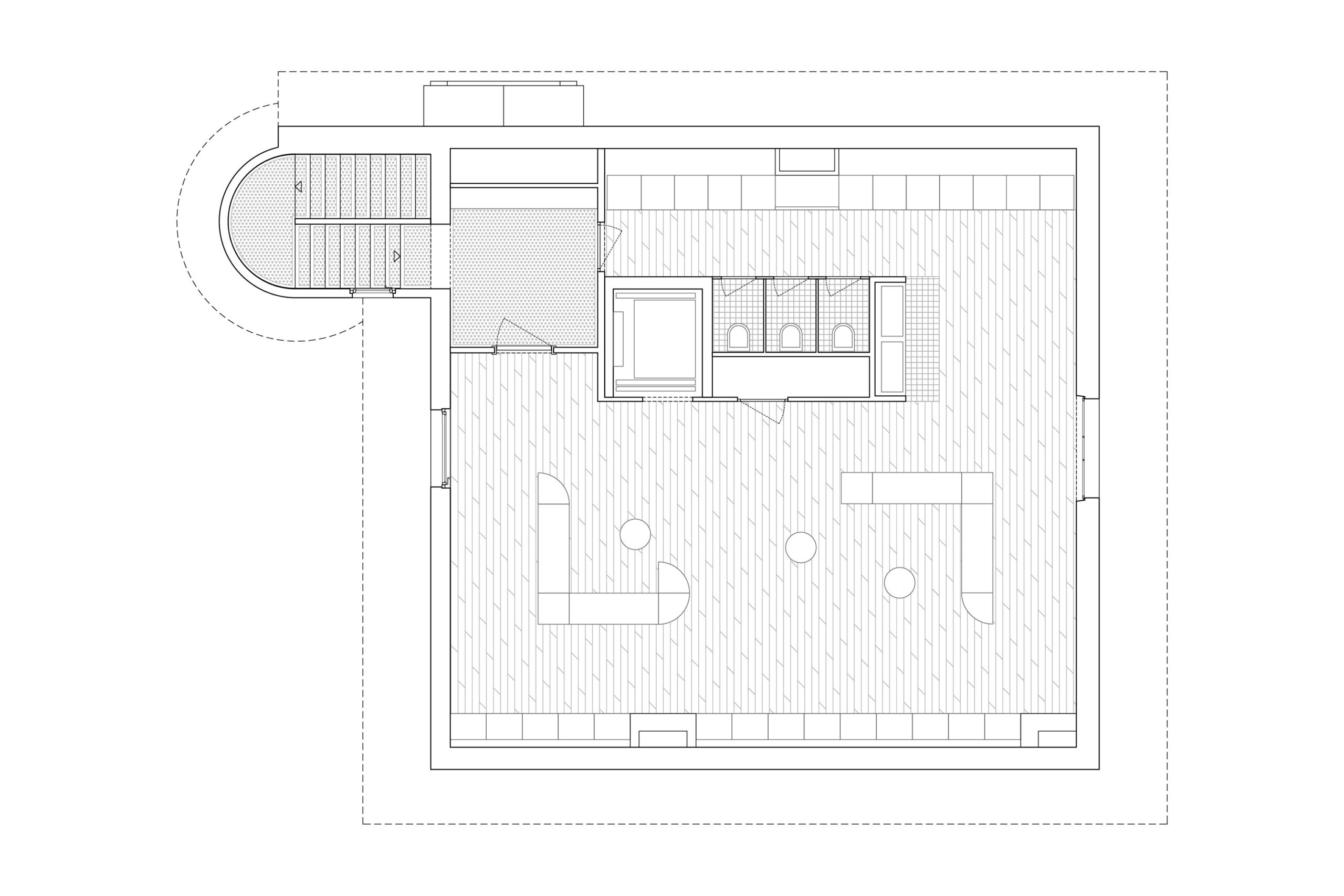
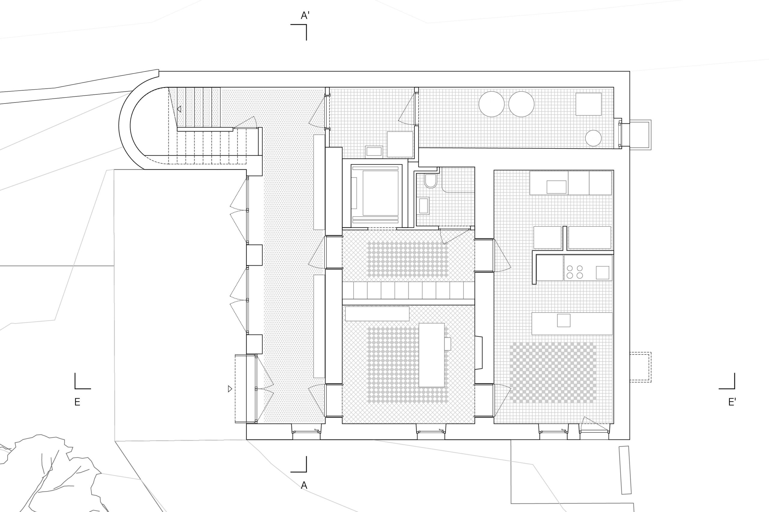
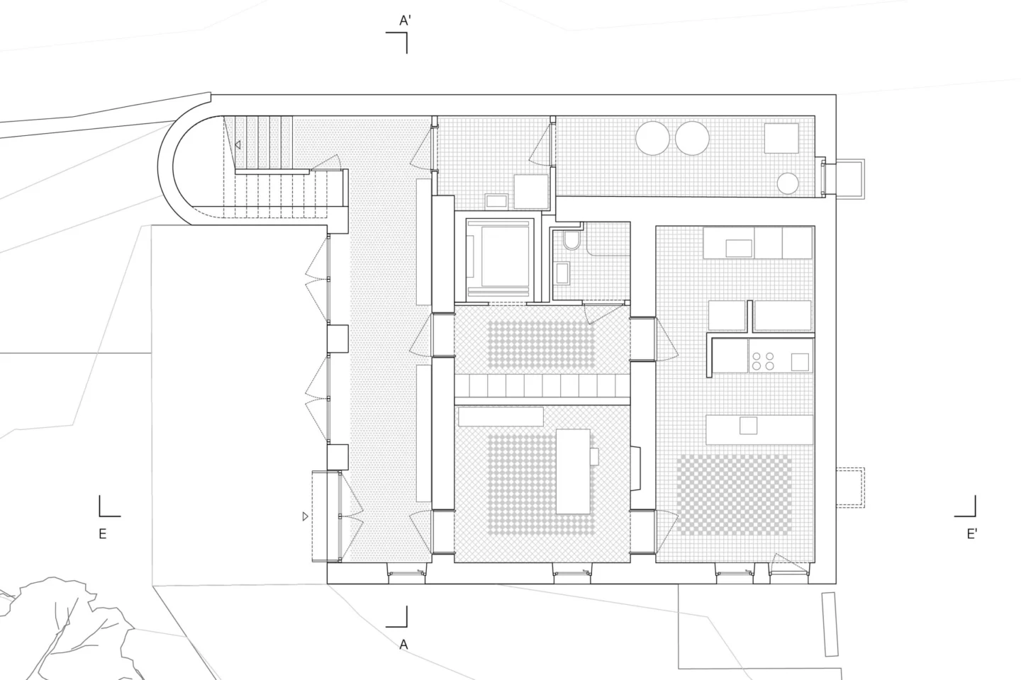
D’une maison familiale, la maison Gubler devient un lieu de vie pour une centaine d’enfants. Une nouvelle organisation spatiale y est développée pour dégager les espaces nécessaires à l’accueil et à la circulation de ce petit monde, en prenant soin de préserver les espaces et les éléments constructifs témoins des qualités patrimoniales originelles de l’édifice. Cette valorisation passe par la suppression de l’extension la plus récente, qui ne présente aucune fusion constructive ni typologique avec le volume initial, et par la remise en lumière des arcades existantes, qui laissent présumer une ouverture passée généreuse du rez inférieur côté ouest.

La typologie de la maison familiale reste conservée: les nouveaux services sont concentrés dans un noyau, ce qui permet de maintenir les revêtements existants dans les espaces majeurs, en particulier au rez supérieur, étage le mieux conservé. Le caractère historique de la maison est ainsi préservé.

Compte tenu du nombre d’enfants dans la maison, un nouvel escalier droit à deux volées remplace l’escalier tournant dans la tourelle. Un ascenseur ayant une faible tête de gaine parvient également à s’intégrer au volume de la toiture existante.

Les façades de la maison ne subissent pas de changement majeur. Un nouveau crépi isolant remplace l’actuelle couche de crépi gris. Les qualités et détails des encadrements en pierre sont ainsi maintenus. L’épaisseur de la toiture, avec la nouvelle isolation, augmente légèrement la volumétrie de la maison. Les fenêtres existantes sont maintenues en préservant leurs cadres et croisillons. Les verres sont toutefois remplacés pour améliorer leurs propriétés énergétiques.

La gamme chromatique choisie se réfère directement à celle retrouvée dans l’édifice, tout en affirmant sa contemporanéité.

Maître de l’ouvrage: Ville de Nyon
Bâtiment note *3* au recensement architectural vaudois

Procédure: concours ouvert, 1er prix

Collaborateurs: Lorenzo Marzano, Patrick Wenger, Alex Collet
Architectes paysagistes: Verzone Woods architectes, Vevey

Photographies: @Zak Andrea Zaccone