2014 Rénovation et réaffectation en unité d'accueil pour les écoliers, ouverture du jardin au public, Nyon (VD) - 1er prix, réalisé

L’atmosphère du jardin de la Maison Gubler relève de la propriété privée, que nous allons transformer en « propriété publique », en préservant son intimité, son laisser-aller et sa spontanéité.

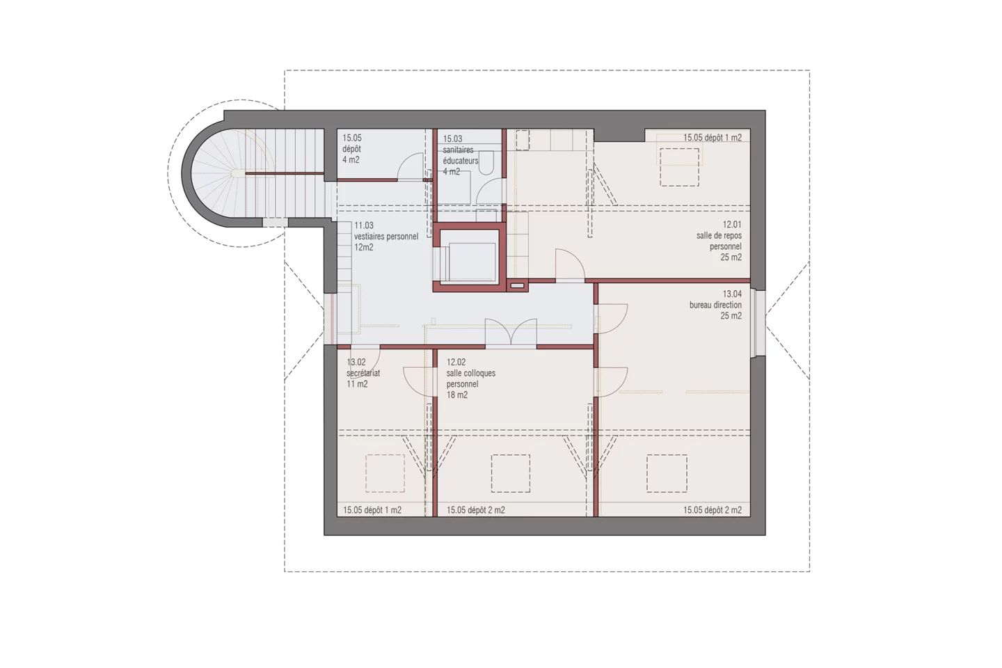
D’une maison familiale, la Maison Gubler devient un lieu de vie pour une centaine d’enfants. Une nouvelle organisation spatiale y est développée pour dégager les espaces nécessaires à l’accueil et à la circulation de ce petit monde, en prenant soin de préserver les espaces et les éléments constructifs témoins des qualités patrimoniales originelles de l’édifice.

Cette valorisation passe par la suppression de l’extension la plus récente, qui ne présente aucune fusion constructive ni typologique avec le volume initial et par la remise en lumière des arcades existantes, qui laissent présumer une ouverture passée généreuse du rez-inférieur côté ouest.

L’extension nécessaire des surfaces utiles se concrétise par l’insertion d’un nouveau pavillon, dont la volumétrie et la distance de la Maison Gubler préservent à cette dernière son premier rôle et créent un espace extérieur d’accueil et de jeu, qui s’organise à l’ombre ud grand hêtre protecteur.

L’indépendance de ce pavillon lui permettra d’accueillir, au besoin, des activités indépendantes de l’UAPE pendant les vacances scolaires, telles que buvette publique, ateliers créatifs, etc.

Maître de l’ouvrage: Ville de Nyon

Procédure: concours ouvert
1er prix, réalisation 2018-2019

Collaboratrices: Amalia Bonsack, Émilie Schmutz
Architectes paysagistes: Verzone Woods sàrl, Rougemont