2016 Établissement psycho-social de Floreyres, Yverdon-les-Bains (VD)

Concours fondation saphir 3d ext
Concours fondation saphir
Concours fondation saphir
Concours fondation saphir
Concours fondation saphir
Concours fondation saphir
Concours fondation saphir
Concours fondation saphir
Concours fondation saphir
Concours fondation saphir

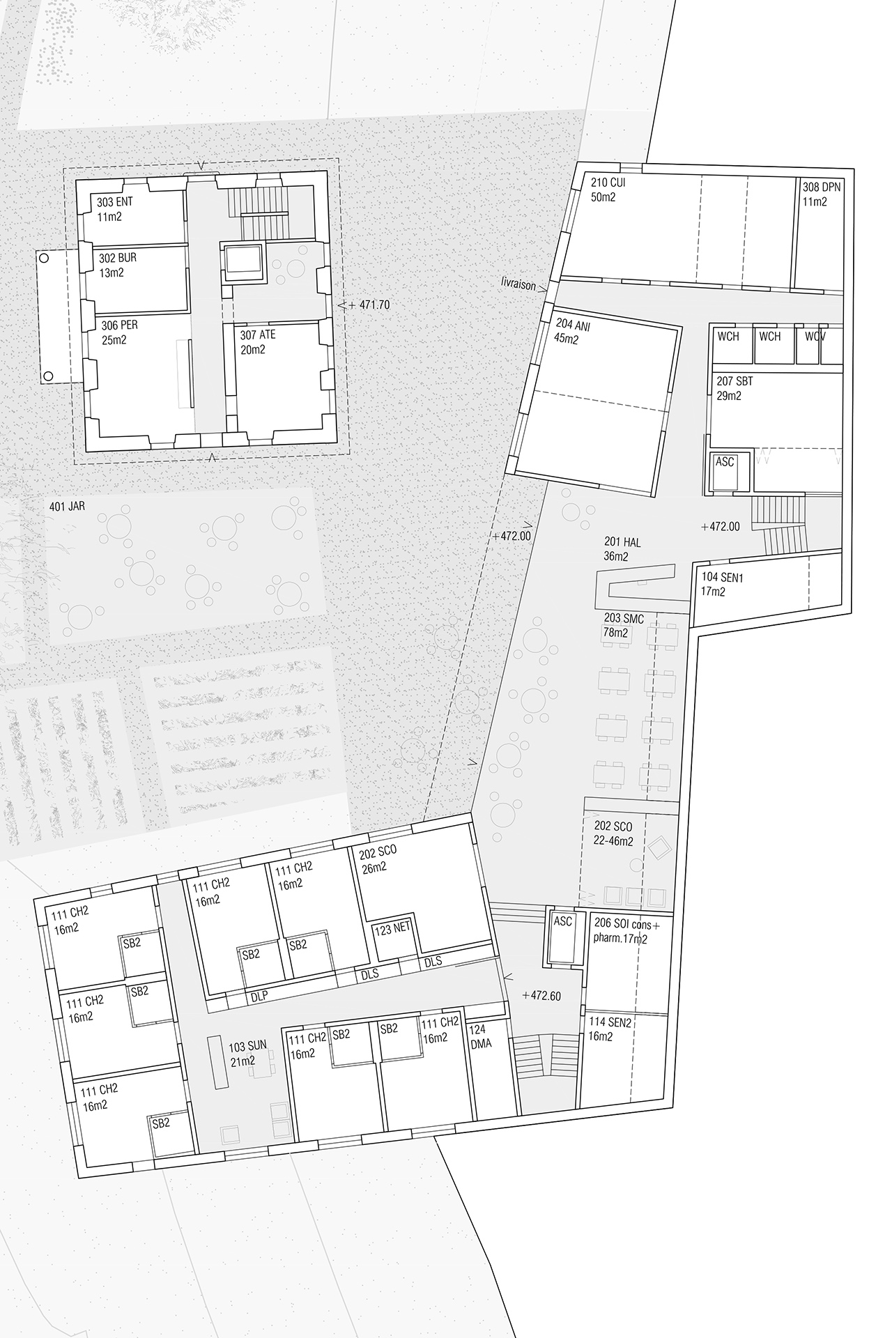
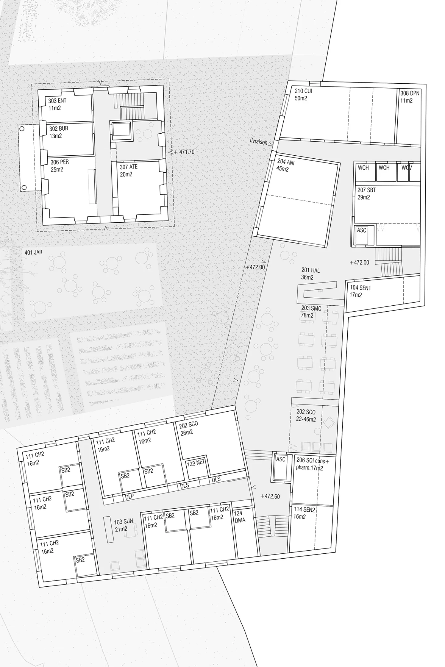
En s’adossant à la pente à l’est de la parcelle, la nouvelle construction laisse filer le terrain sur l’avant. L’ouverture du site vers l’ouest est ainsi maintenue et l’ensoleillement des espaces extérieurs est garanti.

Le volume se déroule autour de la maison de maître avec laquelle il définit la séquence d’espaces collectifs: l’espace d’arrivée, de livraison et la cour centrale qui se prolonge par le jardin domestique.

C’est dans la cour que se retrouvent l’ensemble des résidents. Délimitée sur trois côtés, elle s’ouvre à l’ouest sur les pentes d’Yverdon et sur le Jura. L’angle ouvert du nouveau bâtiment et sa longueur retenue au niveau de la maison de maître assurent l’ensoleillement de la cour.

Le jardin d’agrément, en prolongation de la cour, joue un rôle important dans la vie des habitants. Sa position centrale incite à s’y rendre pour se promener ou pour bêcher. Les belles plantes, résultat du travail fourni, peuvent s’observer depuis les étages. Les parterres de plantations permettent aussi de privatiser les chambres situées en rez surélevé.

La promenade dans le jardin se poursuit par un sentier qui rejoint la clairière laissée par l’ancien parking, où on peut se retirer et bénéficier de la vue sur le Jura, à l’ombre des grands conifères centenaires.

Les espaces collectifs intérieurs (salle à manger et séjours) se caractérisent par une double orientation de lumière et de vue: une baie vitrée ouest s’ouvre sur la cour centrale de grands vitrages zénithaux apportent la lumière de l’Est et la vue sur la végétation arrière.

Par la disposition de deux distributions verticales de part et d’autre des espaces collectifs du rez-de-chaussée, les deux missions peuvent fonctionner indépendamment. leur liaison dans les étages permet une flexibilité d’attribution des chambres à l’une ou l’autre des missions. L’atmosphère des chambres diffère selon leur orientation: certaines ont une vue au loin sur le Jura alors que les chambres orientées Est ont un caractère plus intimiste avec un cadrage sur la végétation au premier plan. Les chambres d’angle bénéficient d’une double orientation.

Le déplacement à l’ouest du centre de gravité de la résidence, y compris le jardin d’agrément, et la disposition du nouveau parking à l’amont, libèrent la parcelle pour accueillir les futures constructions qui pourront s’implanter en bordure ouest du chemin d’accès.

Maître de l’ouvrage: Fondation Saphir

Procédure: concours ouvert

Collaborateur·ices: Adèle Moret, Lorenzo Marzano