2013-2016 Nouveau cycle d'orientation de langue allemande, Fribourg (FR)

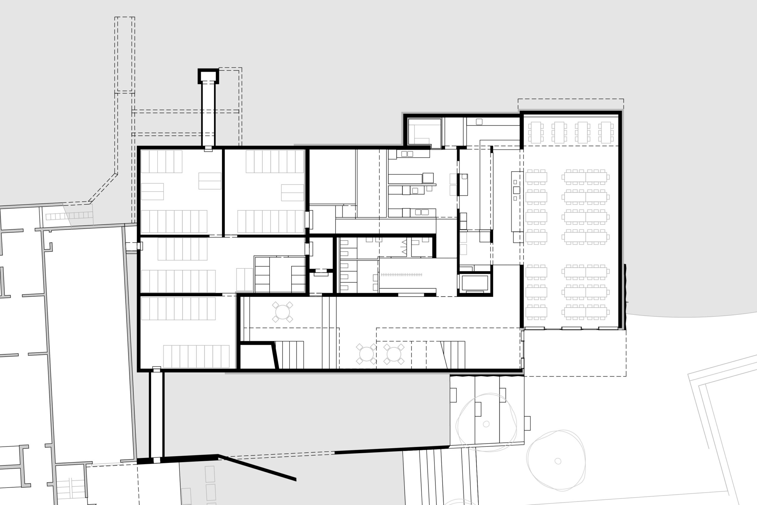
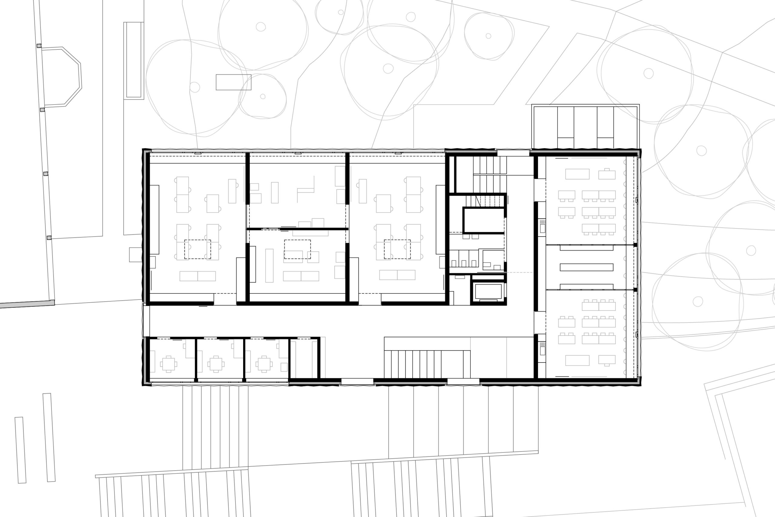
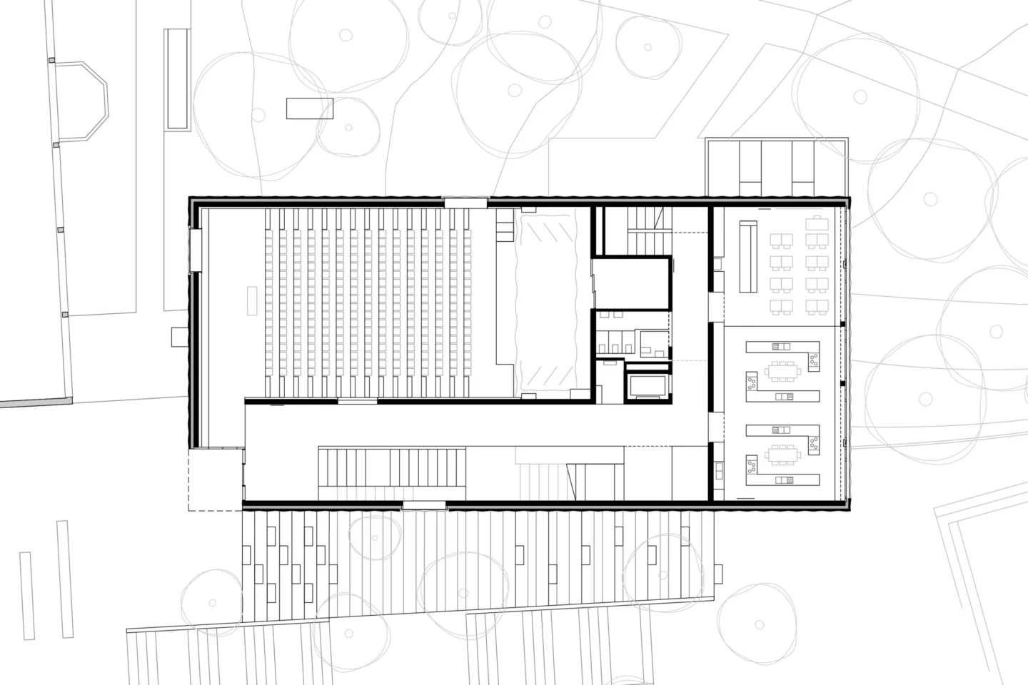
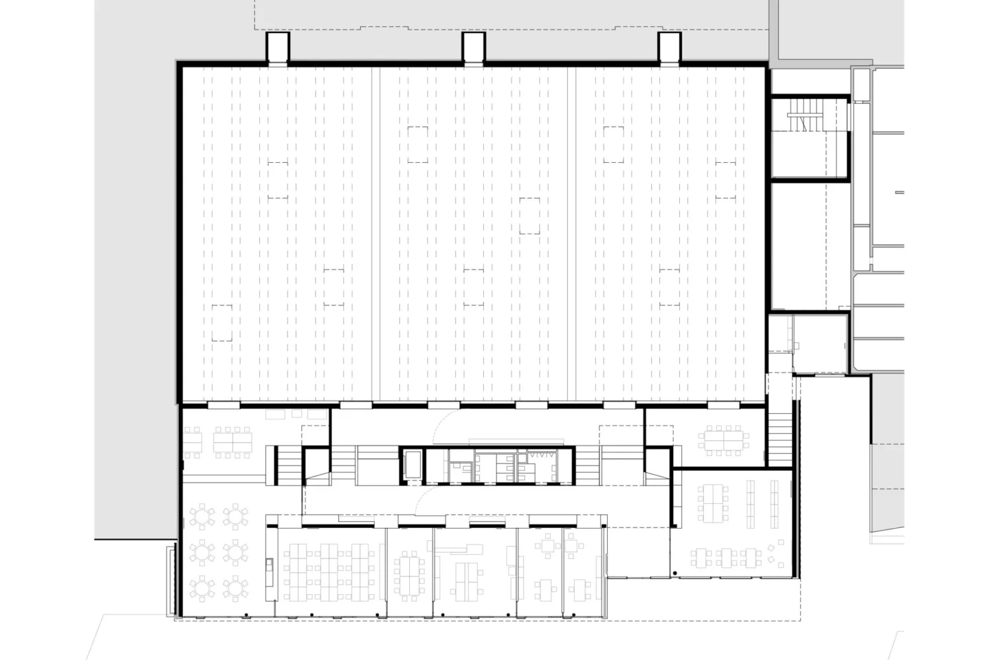
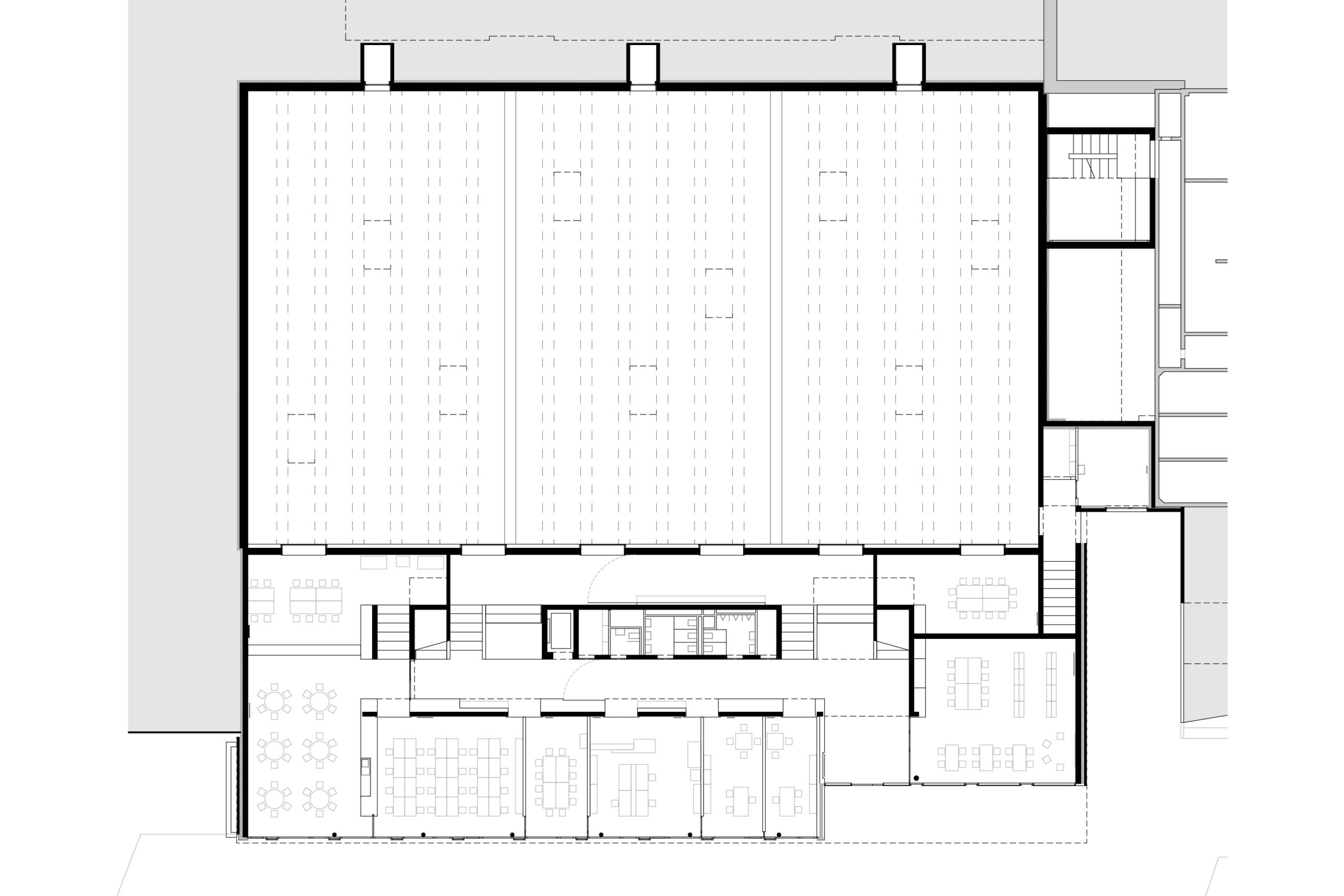
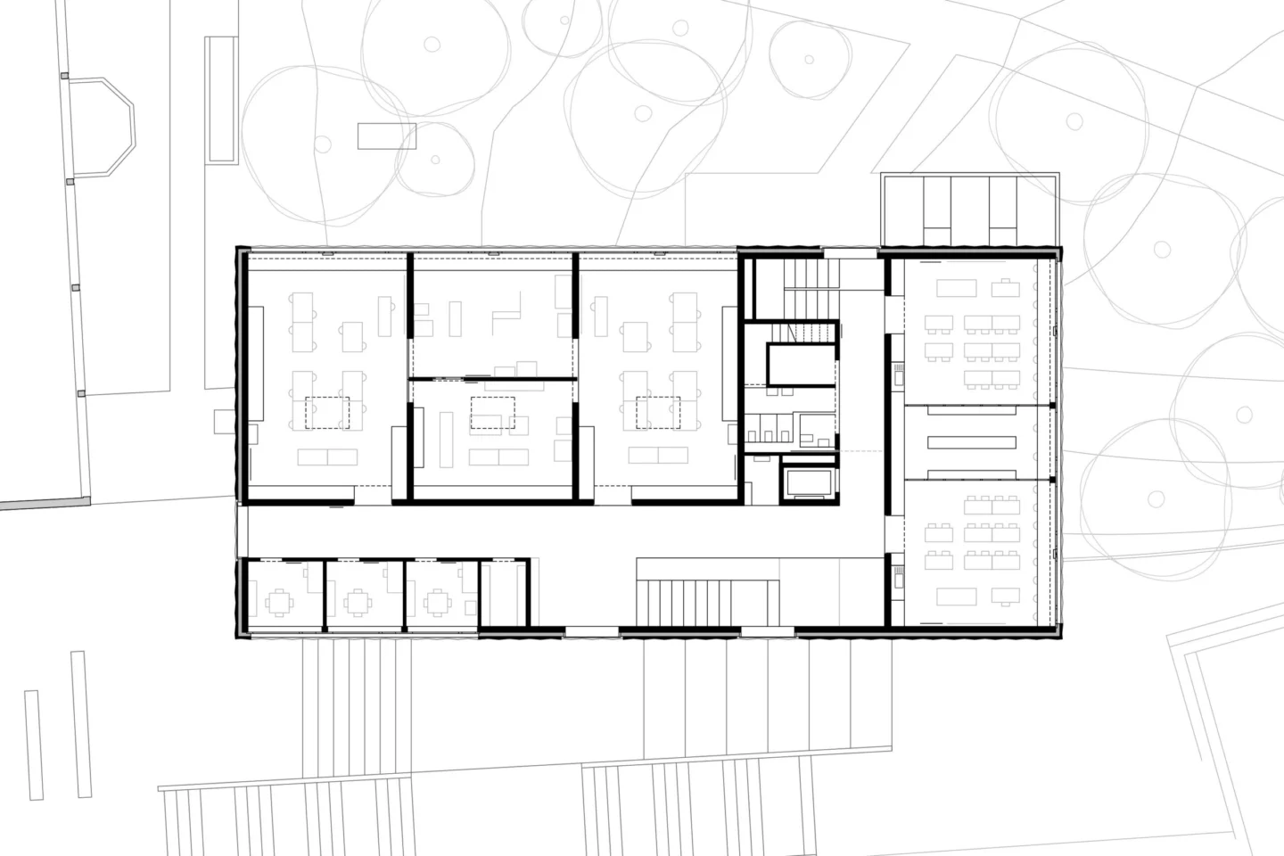
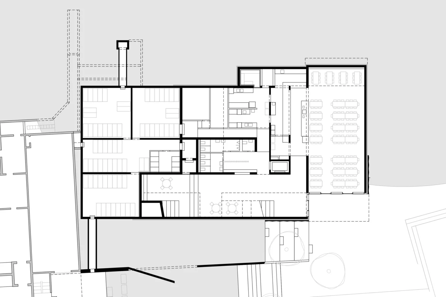
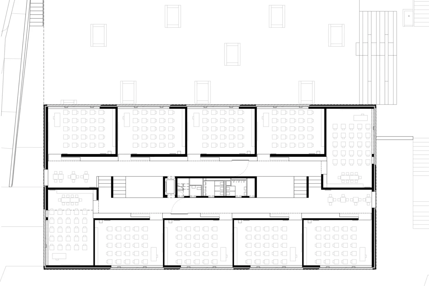
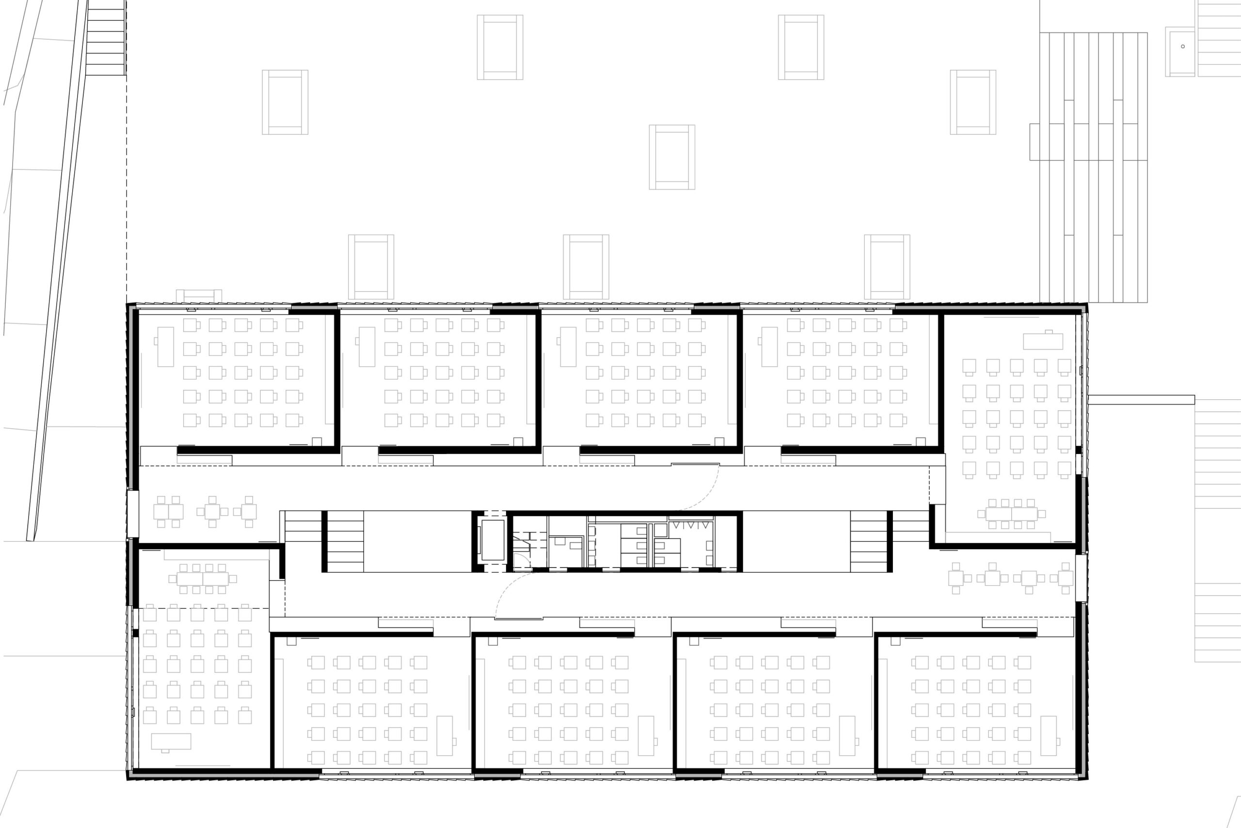
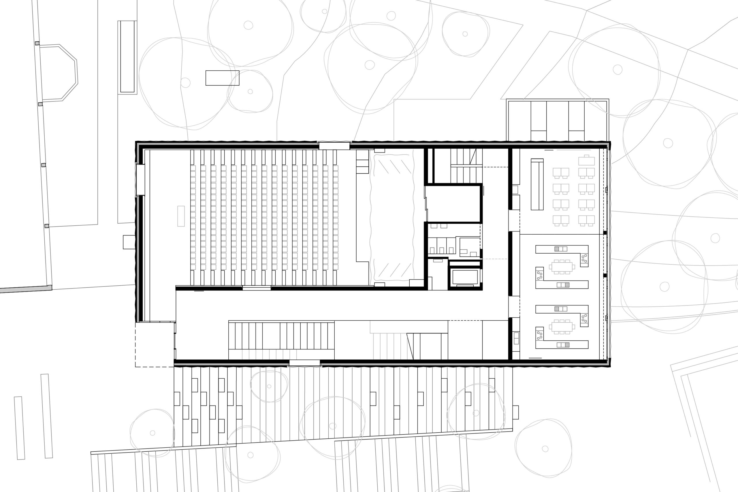
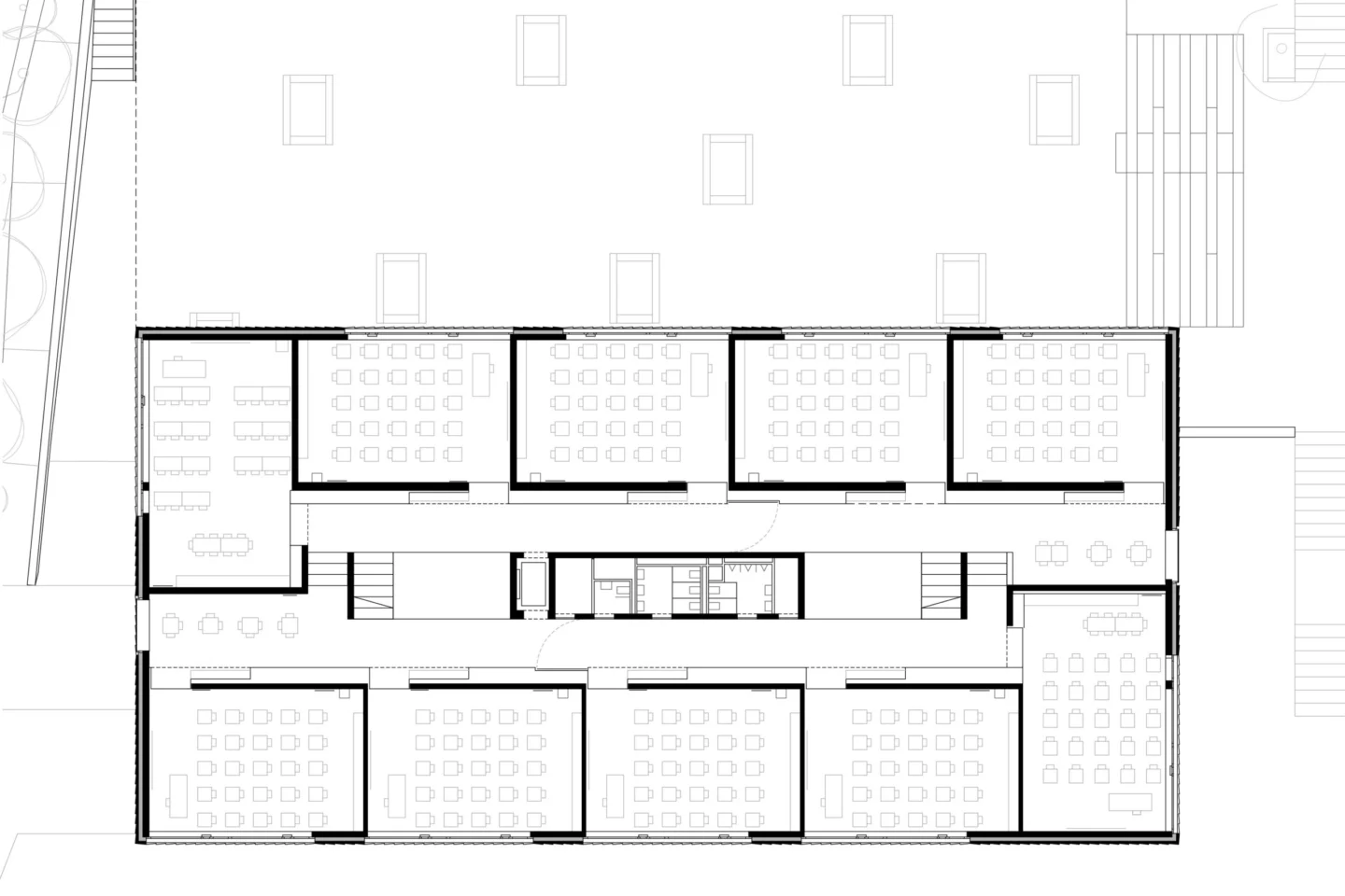
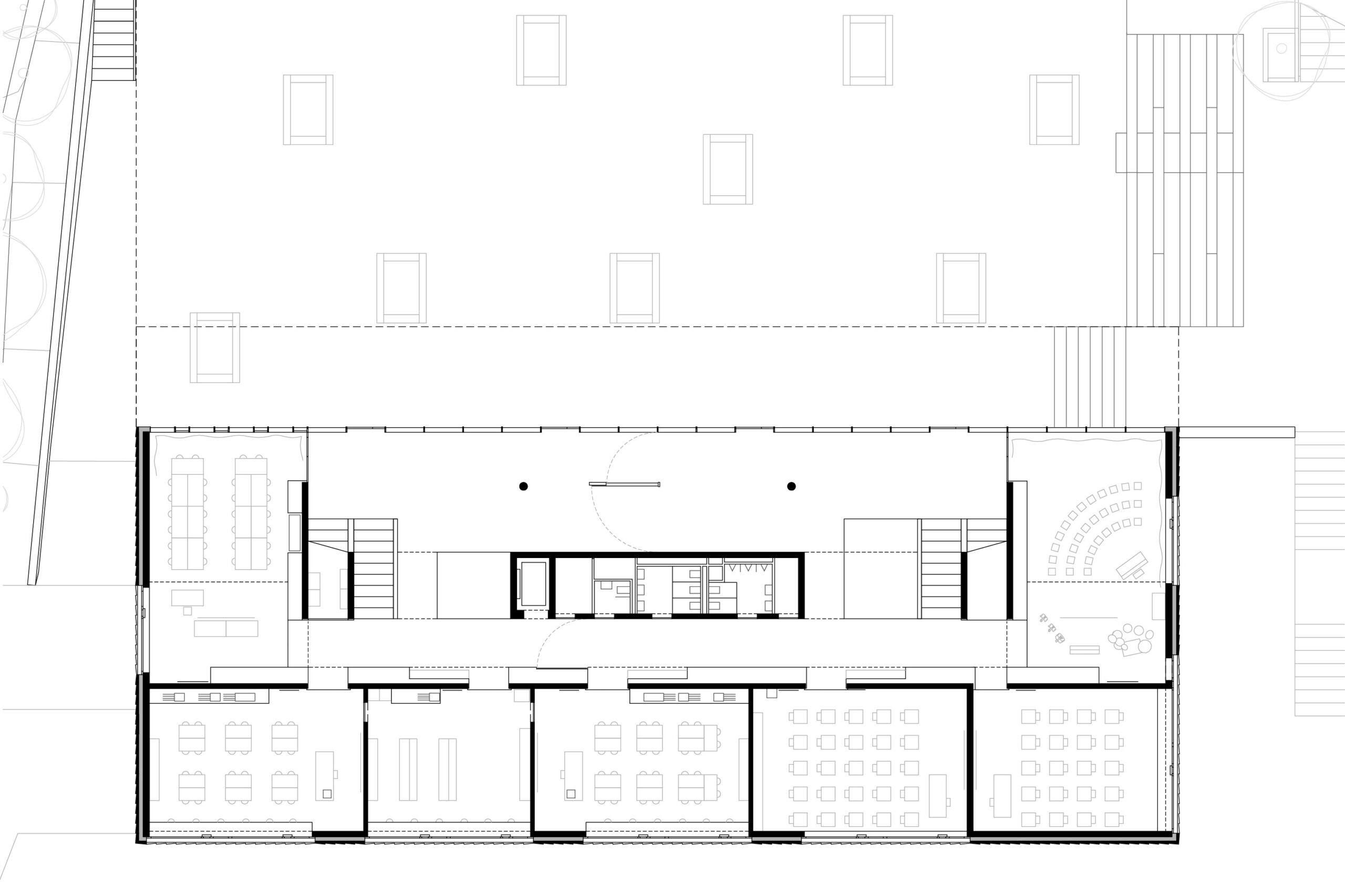
Le regroupement de la DOSF sur un seul site densifie le groupe scolaire préexistant dans le Parc du Jura.

Le projet privilégie la compacité et les relations proches avec les constructions existantes, autour d’un nouvel espace central de préeau. Il préserve ainsi l’espace paysager du parc et le requalifie en créant de nouveaux rapports avec les bâtiments existants.

La densité se traduit par des solutions structurelles et constructives d’imbrications, de superpositions et d’inclusions. L’organisation spatiale des circulations crée des perspectives diagonales parvenant à atténuer la perception de grande compacité.

Les plaques de béton préfabriqué structuré qui parent les bâtiments inscrivent sur leur enveloppe des indices sur la façon dont ils sont structurés, variante contemporaine des recherches expressives de Denis Honnegger à l’Université Miséricorde de Fribourg.

(Librement inspiré du texte de C. Catsaros, Tracés, octobre 2017)

Maître de l’ouvrage: Ville de Fribourg

Procédure: concours ouvert, 1er rang

Collaborateur·ices: Nils Meulemans, Gaëlle Jenni, Caroline Sicre, Florence Thonney, Caroline Peeters, Yannick Lema, Milena Testini, Bruno Christe, Amalia Bonsack, Elisa Bordonaro, Baptiste Adam, Adèle Moret, Hélène Bouchain

Photographies: @Zak Andrea Zaccone, @Francesco Ragusa