2019 Agrandissement de l'EMS Le Glarier à Sion

L’EMS Le Glarier se situe au bord du tissu urbain de la vieille ville. La construction existante reprend le principe d’implantation des autres institutions environnantes, tels que la Cathédrale de Notre-Dame, l’Église Saint-Théodule, l’Évêché, le Tribunal et le lycée-collège de la Planta: parallèle aux anciens remparts, le bâtiment s’affirme comme institution par sa situation indépendante et centrale dans sa parcelle, entourée d’un jardin. L’extension proposée s’inscrit dans cette même logique.

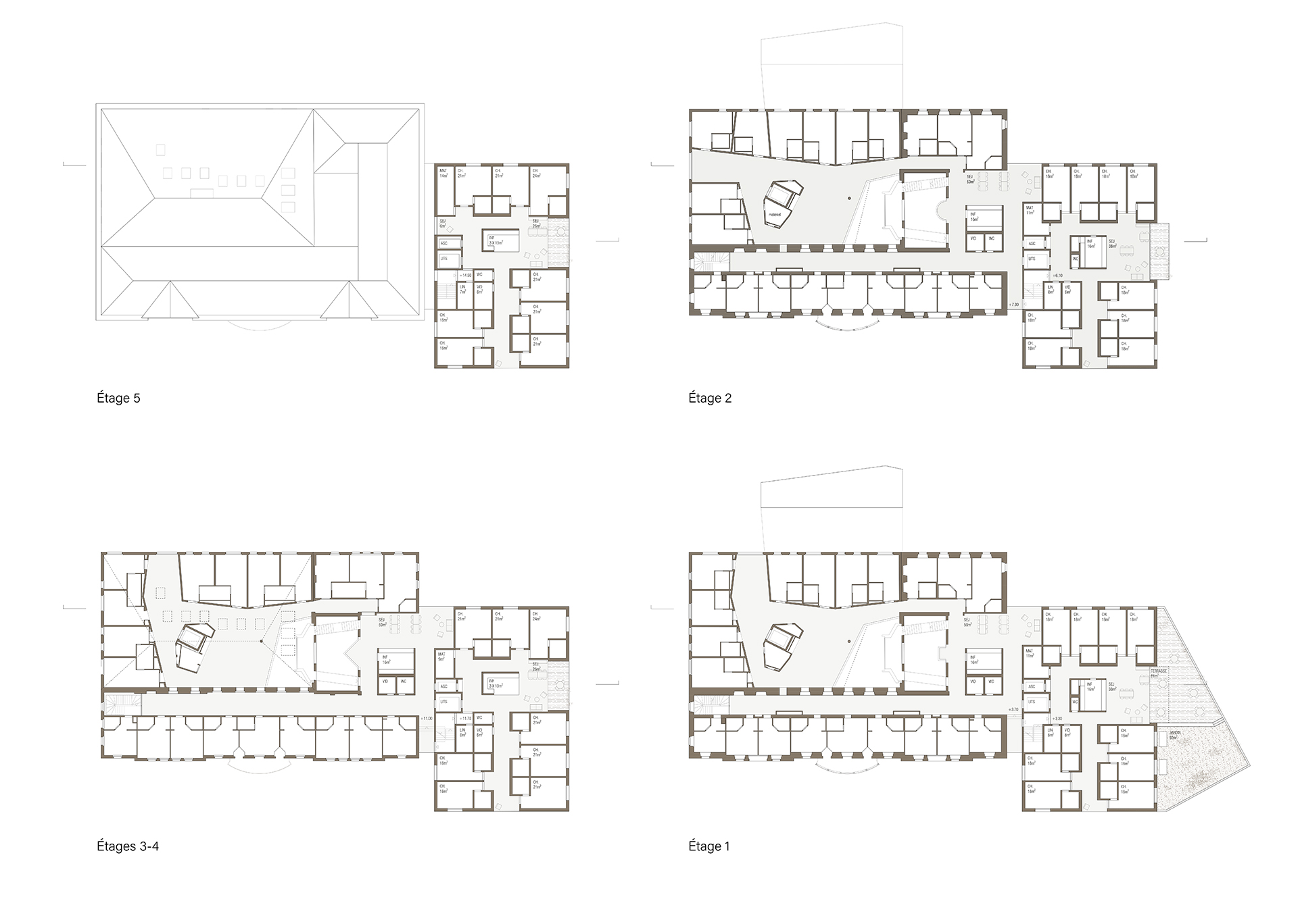
Le projet cherche à valoriser le parc et les espaces verts. Ainsi le parc sud existant est conservé et complété par un jardin au nord-est qui relie une nouvelle terrasse à celle existante pour l’animation. L’espace de circulation et parkings véhicules au nord est traité avec des atériaux perméables et ponctué de végétation. Les accès de livraison sur la rue de la Savièse sont couverts par la terrasse-jardin pour la psychogériatrie située au 1er étage.

Contiguë à l’existant, la nouvelle extension aménage un nouveau système de distribution verticale, commun à l’ensemble de l’EMS et desservant sans exception tous les niveaux. La surface ainsi libérée par l’ancien dispositif de circulation permet l’aménagement à chaque étage d’un séjour avec vue et contact direct sur l’extérieur, associé à un local infirmières et un WC. Le vidoir existant est également déplacé, libérant ainsi le bout de couloir, actuellement borgne.

La nouvelle cuisine, située au rez, assure un service de plain-pied dans les salles à manger et sur les terrasses et bénéficie de lumière naturelle et de vue. Les locaux en sous-sol sont dédiés aux vestiaires, stockage et locaux techniques.

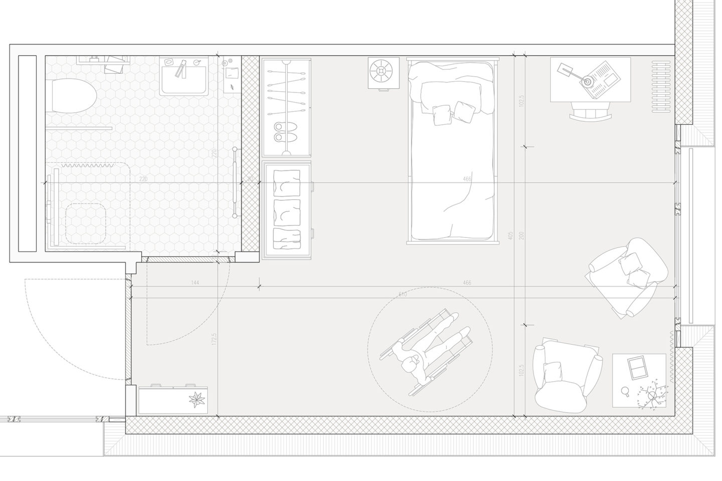
La création de petites unités de 8 à 9 chambres avec un plan en « L » et la répartition des chambres en deux zones évitent les longs couloirs et confèrent aux unités de vie un caractère domestique. Différents seuils ponctuent le parcours: l’espace d’entrée est en relation directe avec le séjour, les chambres sont en retrait. Les seuils d’entrées, communs à deux chambres, contribuent à en augmenter la privacité. Chaque chambre bénéficie d’une vue dégagée sur un jardin ou vers le paysage à plus large échelle. Les séjours orientés Est se prolongent sur la grande terrasse de la psychogériatrie ou sur une loggia. Les étages supérieurs bénéficient d’une belle vue sur les collines de Valère et Tourbillon.

Maîtres de l’ouvrage: Résidence médicalisée « Le Glarier », en collaboration avec le Canton du Valais

Procédure: concours ouvert

Collaboratrices: Adèle Moret, Caroline Peeters, Yamina Sam
Ingénieur civil: Giacomini Jolliet SA