2018 Création de 12 classes supplémentaires sur le site de l'établissement secondaire de Béthusy, Lausanne (VD) - 3e prix

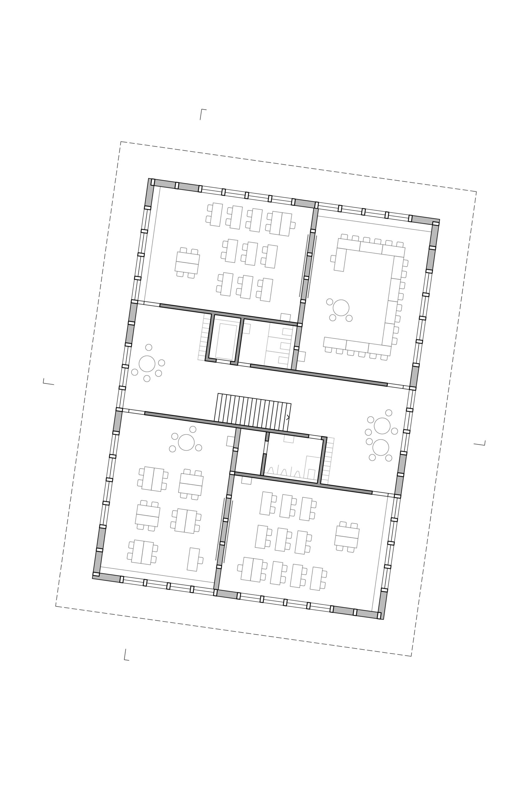
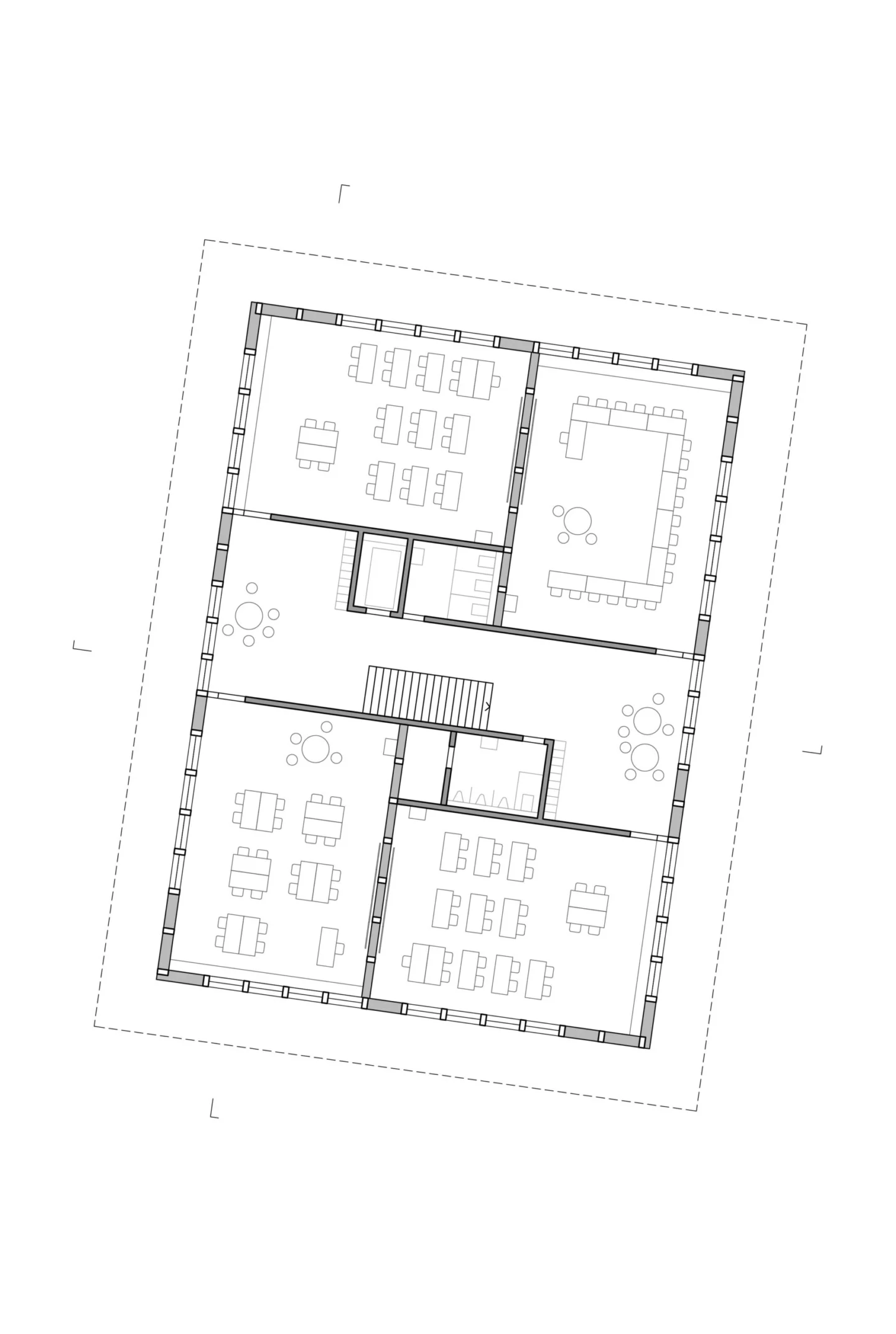
Le site du complexe scolaire de Béthusy est composé principalement de deux parties distinctes: une école sur un grand plateau horizontal inséré dans une pente naturelle assez forte et un agrandissement du collège au nord s’inscrivant dans la pente du terrain.

Le nouveau bâtiment s’installe sur la plateforme, sans toucher à ses limites existantes. Plutôt que de refermer le grand terrain engazonné, il sert d’articulations à différentes séquences spatiales: au nord, un nouvel espace vert de détente et une nouvelle liaison vers les salles de gymnastique par un grand escalier droit, au sud, l’articulation avec l’espace des six tilleuls et la grande cour minérale et, à l’ouest, les parties sportives engazonnées.

La lumière naturelle homogène obtenue par un éclairage bilatéral et les proportions des salles encouragent à une variété d’organisation des salles de classes, permettant un enseignement frontal dans les deux sens et dégageant des espaces propices aux travaux de groupes. Les classes sont regroupées deux par deux autour d’un espace d’échange commun, ce qui confère une petite échelle à l’ensemble. Les espaces de circulation sont caractérisée par des matériaux minéraux (incombustibilité et inertie thermique) et le bois habille les classes.

Le projet propose une structure en bois: colonnes, sommiers en bois et planchers en caissons bois apparents intégrant les mesures acoustiques. La stabilité contre les efforts horizontaux est assurée par les murs en béton délimitant la circulation centrale et le noyau.

Maître de l’ouvrage: Ville de Lausanne

Procédure: concours sur présélection
3e prix

Collaboratrices: Adèle Moret, Caroline Sicre, Gaëlle Jenni
Ingénieurs civils: Ingeni SA, Lausanne (VD)