2017 Extension de l'école Meinier (GE)

Meinier est un village agricole de la campagne genevoise en pleine transformation. D’un village-rue où les espaces libres sont les champs qui entourent le bâti, l’îlot récemment construit définit un premier grand espace collectif au centre du village. Les différents bâtiments qui constituent l’école actuelle participent volumétriquement à la définition de l’espace central, mais l’école n’entretient pas de lien direct avec son cœur (entrée depuis l’intérieur de l’îlot condamnée, façade de services sur la place, salle de gymnastique semi-enterrée).

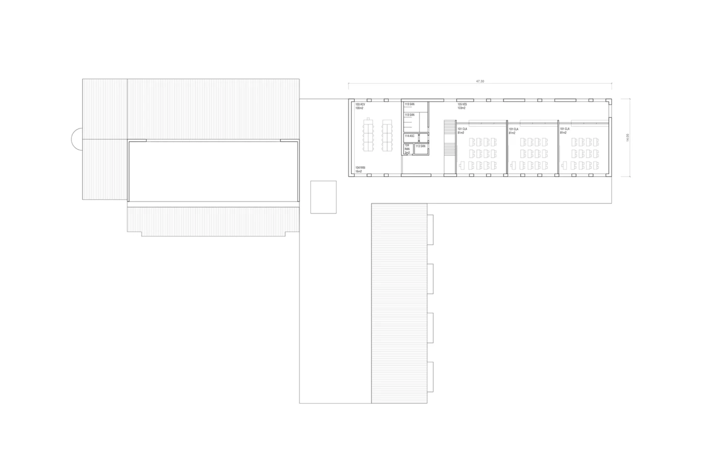
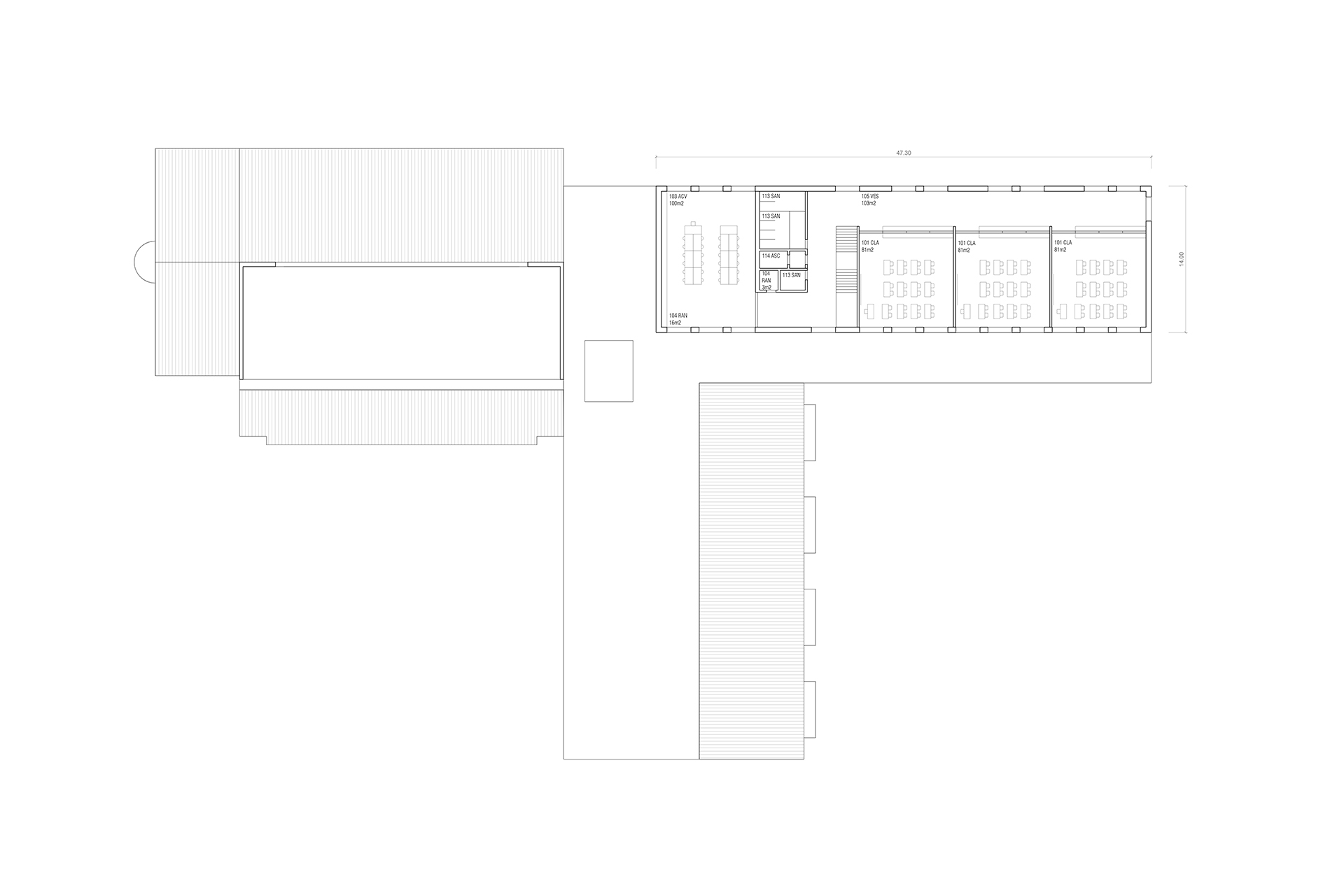
Le projet travaille sur deux thèmes: redéfinir et revaloriser les différentes séquences spatiales de l’intérieur de l’îlot et composer avec les bâtiments scolaires existants pour former un tout. Le plan se développe en hélice associant les nouvelles classes à la salle de gymnastique et aux quatre classes des années 1990. L’école se retourne et s’ouvre sur l’espace public intérieur. Un large escalier relie le parvis d’entrée au préau aménagé au niveau de la place. Ainsi l’école ne donne plus sur un espace triangulaire résiduel, mais acquiert un rôle structurant en prenant en charge une séquence de l’espace urbain central. Une nouvelle aile vient redéfinir et protéger le plus petit préau existant et offre une seconde entrée à l’école. Enfin, une entrée directe depuis la route de la Repentance se situe à l’articulation entre l’école et la salle de gymnastique.

Le principe typologique de l’école existante est repris: les salles d’étude s’ouvrent sur un large couloir distributif, intégrant des vestiaires et apportant une lumière naturelle complémentaire aux salles de classes. La salle de jeux, située à l’articulation du plan, prend un rôle central. Elle s’ouvre sur trois côtés et joue le rôle de photophore distribuant la lumière naturelle zénithale au cœur du projet.

Maître de l’ouvrage: commune de Meinier

Procédure: concours ouvert

Collaborateur·ices: Lorenzo Marzano, Florence Thonney, Caroline Sicre, Adèle Moret