2003 Extention de l'hôpital de Zone, Nyon (VD)

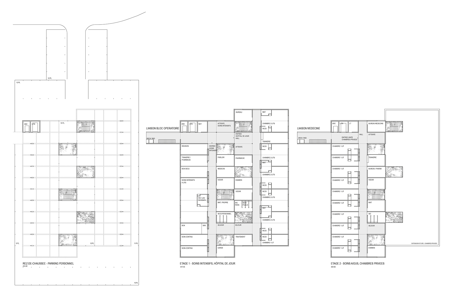
Le complexe hospitalier s’oriente clairement vers le sud, le lac et le parc, espace de référence extérieur végétal, Au nord, les surfaces sont principalement imperméables.

Dans un souci écologique et économique, et tenant compte du caractère provisoire et temporaire de l’extension souhaitée, le projet propose de ne pas augmenter les surfaces minérales en s’implantant au dessus du parking situé sur la toiture du COP et lui enlevant du même coup sa position dominante. Les nouvelles chambres participent par là aux espaces de verdure et de quiétude avoisinants.

Des modules de construction préfabriqués et recyclables sont utilisés, avec des matériaux non traités et peu coûteux, dans un souci d’évolutivité et de développement durable. La lumière naturelle est amenée à l’intérieur du bâtiment par six puits de lumière, correspondant chacun à un module « enlevé ». Certains vides contiennent les escaliers de secours, d’autres une végétation grimpant vers la lumière.

Les chambres étant occupées principalement par des patients alités, l’espace du lit bénéficie principalement de la lumière et de la vue. La fenêtre est située tout près du lit, et descend jusqu’au sol.

Maître de l’ouvrage: Association de l’hôpital de zone de Nyon

Concours sur présélection